S VILLA – BYAKOUT – LEBANON

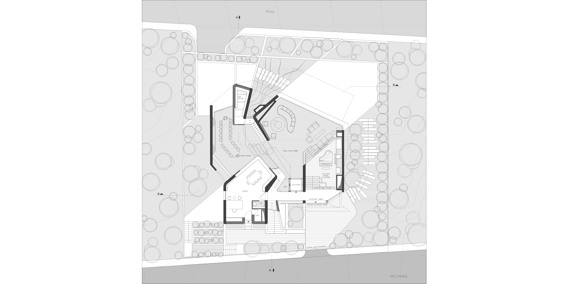
S VILLA - THE GUARDIAN BYAKOUT - LEBANON S VILLA - THE GUARDIAN BYAKOUT - LEBANON Conceived for a contractor, a developer, an art collector, a man with a vision… The GUARDIAN, a black beast, emerges from the ground as [...]





Recent Portfolios