HN VILLA AMMAN - JORDAN HN VILLA AMMAN - JORDAN When an artist asks you to build his house, how do you proceed? Located in Amman, Jordan, in an arid nature, where the context is mainly constituted of rocks and [...]
HN VILLA
AMMAN – JORDAN
HN VILLA
AMMAN – JORDAN
When an artist asks you to build his house, how do you proceed?
Located in Amman, Jordan, in an arid nature, where the context is mainly constituted of rocks and wild plantations, the plot is own by a sexagenarian woman painter who wants to build her retirement house.
With more than 500 species of plants coming from all over the world and 500 paintings in her collection, the owner is passionate about nature, architecture, and paintings.
Her artwork, combination of colors, and shapes define each period of her life.
Does architecture need to be related to her paintings? does it need to be an imitation of the forms seen in her artwork?
Non-Euclidean geometry is represented by her artwork versus conventional perspectives.
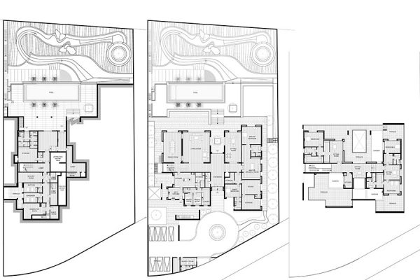
The binding matrix is the cross-shaped gallery of the painter’s artwork. It acts like a magnet over the different volumes that pile up around it, forming a combination of cubes, suspended walls, free-standing masses, open spaces, and open-air areas dissimulated behind vertical plans, liberating the perspectives from the classical unique vanishing point to a multidimensional constellation.
A combination of local stone envelopes the entire project, from walls to slabs and ceilings, creating an atmosphere in direct relation to the context.
A massive fragmented volume, on 3 levels, conceived as a series of geometrical plans and shapes, relates the inner spaces to the dry Jordanian context, creating shaped shadows, different levels, targeted views, and a series of successive and rich spaces where light outlines the main external circular opening in the axis of the entrance.
The scenery starts with a mix of geometrical forms, plans, and shapes, where the only opening is the entrance door beneath a suspended porch leading to a cross shape gallery, support of the artwork, with a specimen tree in the axis, lit by natural light underneath a giant circular opening creating a focal point to the entire process.
The human becomes an actor in this stone infrastructure, where everything becomes over-dimensioned and where light stretches the spaces to unite with the outside world.